都島中通2丁目【新築戸建】御成約済
【 新築一戸建て 】南向きで2台駐車可能な物件です。
| 最寄駅 | 所在地 | 面積 | 築年月 | 間取り |
|---|---|---|---|---|
大阪メトロ長堀鶴見緑地線「京橋駅」 徒歩 10分 | 大阪市都島区都島中通2丁目11 | 土地/103.02㎡ 建物/102.06㎡ | 2021年05月 | 4 LDK |
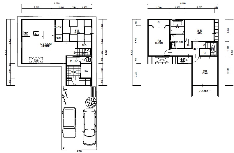
物件写真・間取り
物件概要
| 物件名 | 都島中通2丁目【新築戸建】御成約済 |
|---|
| 交通機関 | 大阪メトロ長堀鶴見緑地線「京橋駅」 徒歩 10分 大阪メトロ谷町線「都島駅」 徒歩 12分 JR環状線「京橋得駅」 徒歩 12分 |
|---|
| 所在地 | 大阪市都島区都島中通2丁目11 |
|---|
| 間取り | 4 LDK |
|---|
| 土地権利 | 所有権 |
|---|
| 土地面積 | 103.02㎡ |
|---|
| 私道負担面積 | 無し |
|---|
| 建物面積 | 102.06㎡ |
|---|
| 建物構造 | 木造 |
|---|
| 築年月 | 2021年05月 |
|---|
| 都市計画 | 市街化区域 |
|---|
| 用途地域 | 第一種住居地域 |
|---|
| 建ぺい率 | 80% |
|---|
| 容積率 | 300% |
|---|
| 駐車場 | 有 |
|---|
| 接道 |
|
|---|
| 地目 | 宅地 |
|---|
| 現況 | 更地 |
|---|
| 引渡し | 相談 |
|---|
| 備考 | 地震保証30年・地盤保証10年・瑕疵担保保険10年付 標準仕様です。 |
|---|
| 取引態様 | 代理 |
|---|
| 情報登録日 | 2020年12月04日 |
|---|
| 情報更新日 | 情報登録日より2週間 |
|---|




















