豊中市宝山町
【 新築一戸建て 】阪急宝塚線「岡町駅」より徒歩8分 (御成約済)
| 最寄駅 | 所在地 | 面積 | 築年月 | 間取り |
|---|---|---|---|---|
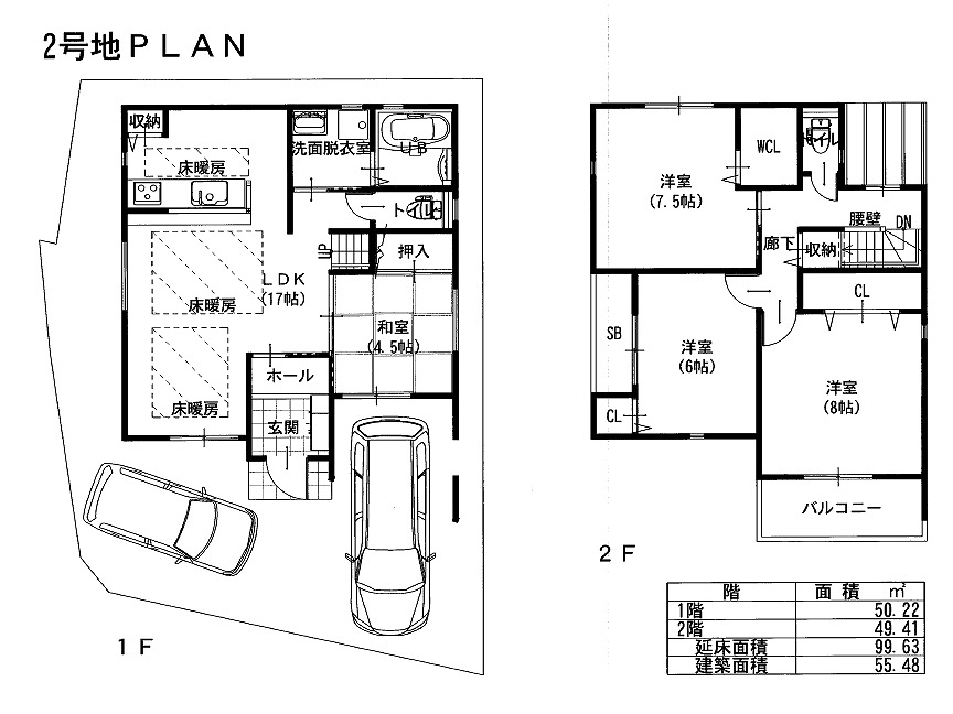
交通・最寄1 徒歩 10分 バス停1 | 豊中市宝山町 | 土地/103.5㎡ 建物/100㎡ | 2018年09月 | 4 LDK |
・超制震住宅(地震保証30年付)
物件写真・間取り
物件概要
| 物件名 | 豊中市宝山町 |
|---|
| 交通機関 | 交通・最寄1 徒歩 10分 バス停1 交通・最寄2 バス 5分 バス停2 |
|---|
| 所在地 | 豊中市宝山町 |
|---|
| 間取り | 4 LDK |
|---|
| 土地権利 | 所有権 |
|---|
| 土地面積 | 103.5㎡ |
|---|
| 建物面積 | 100㎡ |
|---|
| 建物構造 | 木造 |
|---|
| 築年月 | 2018年09月 |
|---|
| 都市計画 | 市街化区域 |
|---|
| 用途地域 | 第一種中高層住居専用地域 |
|---|
| 建ぺい率 | 60% |
|---|
| 容積率 | 200% |
|---|
| 駐車場 | 有 |
|---|
| 接道 |
|
|---|
| 地目 | 宅地 |
|---|
| 現況 | 更地 |
|---|
| 取引態様 | 媒介 |
|---|
| 物件番号 | 3 |
|---|
| 情報登録日 | 2018年07月28日 |
|---|
| 情報更新日 | 2018年07月28日 |
|---|















