東大阪市西堤本通東3丁目 御商談中
【 新築一戸建て 】前道6.6m 限定1区画
| 最寄駅 | 所在地 | 面積 | 築年月 | 価格 |
|---|---|---|---|---|
大阪メトロ中央線「高井田」 徒歩 12分 | 東大阪市西堤本通東3丁目 | 土地/69.92㎡ 建物/105㎡ | 2026年10月 | 4,280 万円 |
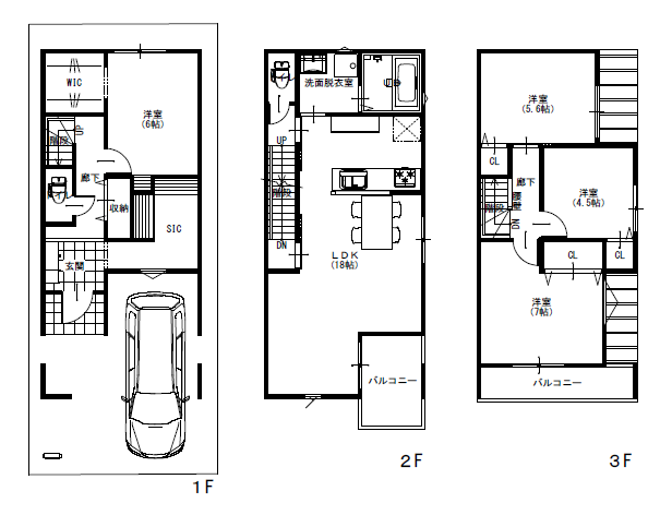
物件写真・間取り
物件概要
| 物件名 | 東大阪市西堤本通東3丁目 御商談中 |
|---|
| 交通機関 | 大阪メトロ中央線「高井田」 徒歩 12分 おおさか東線「高井田中央」 徒歩 13分 |
|---|
| 所在地 | 東大阪市西堤本通東3丁目 |
|---|
| 価格 | 4,280 万円 |
|---|
| 土地権利 | 所有権 |
|---|
| 土地面積 | 69.92㎡ |
|---|
| 私道負担面積 | 無し |
|---|
| 建物面積 | 105㎡ |
|---|
| 建物構造 | 木造 |
|---|
| 築年月 | 2026年10月 |
|---|
| 都市計画 | 市街化区域 |
|---|
| 用途地域 | 第一種住居地域 |
|---|
| 建ぺい率 | 60% |
|---|
| 容積率 | 200% |
|---|
| 接道 |
|
|---|
| 地目 | 宅地 |
|---|
| 現況 | 更地 |
|---|
| 情報登録日 | 2026年02月27日 |
|---|
| 情報更新日 | 2026年02月27日 |
|---|










