池田市鉢塚3丁目 南向きの土地 御商談中
【 新築一戸建て 】水月公園の東に位置する静かな住宅地です
| 最寄駅 | 所在地 | 面積 | 築年月 | 価格 | 間取り |
|---|---|---|---|---|---|
阪急宝塚線・箕面線「石橋阪大前」 徒歩 15分 | 池田市鉢塚3丁目 | 土地/100㎡ 建物/100㎡ | 2026年11月 | 5,280 万円 | 4 LDK |
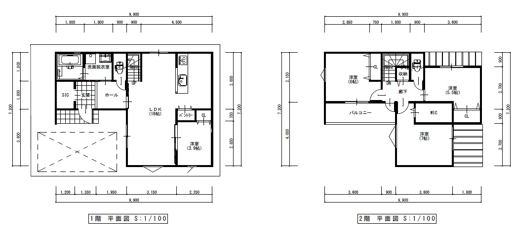
物件写真・間取り
物件概要
| 物件名 | 池田市鉢塚3丁目 南向きの土地 御商談中 |
|---|
| 交通機関 | 阪急宝塚線・箕面線「石橋阪大前」 徒歩 15分 |
|---|
| 所在地 | 池田市鉢塚3丁目 |
|---|
| 価格 | 5,280 万円 |
|---|
| 間取り | 4 LDK |
|---|
| 土地権利 | 所有権 |
|---|
| 土地面積 | 100㎡ |
|---|
| 私道負担面積 | 無し |
|---|
| 建物面積 | 100㎡ |
|---|
| 建物構造 | 木造 |
|---|
| 築年月 | 2026年11月 |
|---|
| 都市計画 | 市街化区域 |
|---|
| 用途地域 | 第一種中高層住居専用地域 |
|---|
| 建ぺい率 | 60% |
|---|
| 容積率 | 200% |
|---|
| 駐車場 | 有 |
|---|
| 接道 |
|
|---|
| 地目 | 宅地 |
|---|
| 現況 | 未着工 |
|---|
| 備考 | ◇土地先行決済 土地価格3280万円 建物価格2000万円 ◇耐震等級3 省エネ適合住宅 |
|---|
| 取引態様 | 代理 |
|---|
| 情報登録日 | 2026年02月08日 |
|---|
| 情報更新日 | 2026年02月08日 |
|---|













