淀川区三国本町3丁目【建築条件付き土地】御成約済
【 土地 】阪急宝塚線「三国駅」徒歩5分
| 最寄駅 | 所在地 | 面積 | 築年月 |
|---|---|---|---|
阪急宝塚線「三国駅」 徒歩 5分 | 大阪市淀川区三国本町3丁目 | 土地/98㎡~㎡ | 2022年00月 |
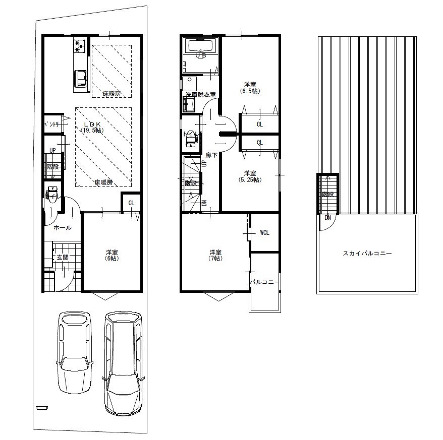
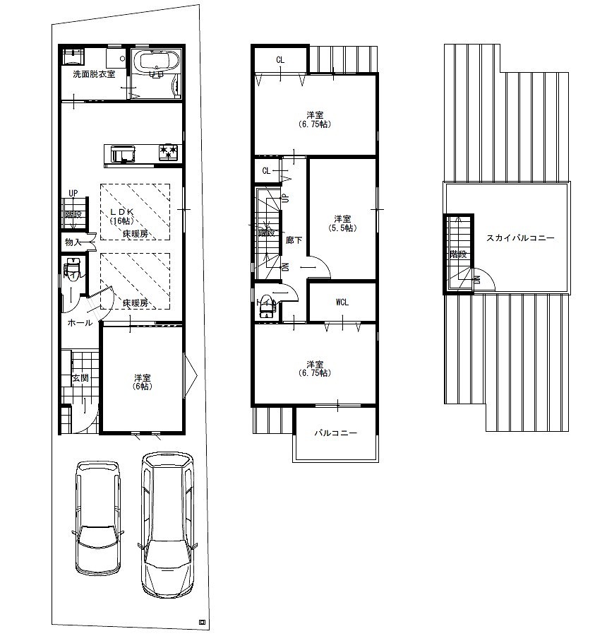
物件写真・間取り
物件概要
| 物件名 | 淀川区三国本町3丁目【建築条件付き土地】御成約済 |
|---|
| 交通機関 | 阪急宝塚線「三国駅」 徒歩 5分 大阪メトロ御堂筋線「東三国駅」 徒歩 17分 東海道新幹線「新大阪駅」 徒歩 19分 |
|---|
| 所在地 | 大阪市淀川区三国本町3丁目 |
|---|
| 土地権利 | 所有権 |
|---|
| 土地面積 | 98㎡~㎡ |
|---|
| 築年月 | 2022年00月 |
|---|
| 都市計画 | 市街化区域 |
|---|
| 用途地域 | 第一種住居地域 |
|---|
| 建ぺい率 | 80% |
|---|
| 容積率 | 200% |
|---|
| 駐車場 | 有 |
|---|
| 接道 |
|
|---|
| 地目 | 宅地 |
|---|
| 現況 | 建物有 |
|---|
| 引渡し | 相談 |
|---|
| 取引態様 | 一般 |
|---|
| 情報登録日 | 2021年04月14日 |
|---|
| 情報更新日 | 2022年02月17日 |
|---|















