平野区加美西2丁目【新築戸建】 御成約済
【 新築一戸建て 】新規全4区画の街 新築2階建
| 最寄駅 | 所在地 | 面積 | 築年月 | 間取り |
|---|---|---|---|---|
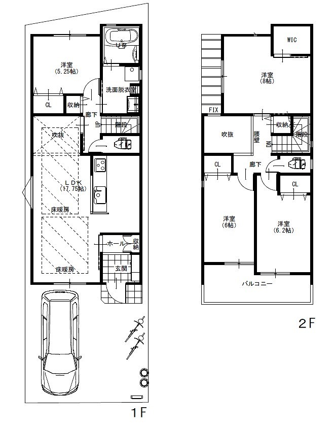
JR関西本線「加美駅」 徒歩 9分 | 大阪市平野区加美西2丁目 | 土地/98.72㎡ 建物/100㎡ | 2024年12月 | 4 LDK |
物件写真・間取り
物件概要
| 物件名 | 平野区加美西2丁目【新築戸建】 御成約済 |
|---|
| 交通機関 | JR関西本線「加美駅」 徒歩 9分 JRおおさか東線「新加美駅」 徒歩 10分 大阪メトロ谷町線「平野駅」 徒歩 19分 |
|---|
| 所在地 | 大阪市平野区加美西2丁目 |
|---|
| 間取り | 4 LDK |
|---|
| 土地権利 | 所有権 |
|---|
| 土地面積 | 98.72㎡ |
|---|
| 私道負担面積 | 無し |
|---|
| 建物面積 | 100㎡ |
|---|
| 建物構造 | 木造 |
|---|
| 築年月 | 2024年12月 |
|---|
| 都市計画 | 市街化区域 |
|---|
| 用途地域 | 準工業地域 |
|---|
| 建ぺい率 | 60% |
|---|
| 容積率 | 200% |
|---|
| 接道 |
|
|---|
| 地目 | 宅地 |
|---|
| 現況 | 更地 |
|---|
| 販売戸数 | 4戸 |
|---|
| 引渡し | 相談 |
|---|
| 取引態様 | 代理 |
|---|
| 情報登録日 | 2023年06月17日 |
|---|
| 情報更新日 | 2024年12月03日 |
|---|













