都島区大東町2丁目【新築戸建】 御成約済
【
新築一戸建て
】おおさか東線 平成31年春 全通予定
「城北公園通駅」徒歩6分
| 最寄駅 | 所在地 | 面積 | 築年月 | 間取り |
|---|---|---|---|---|
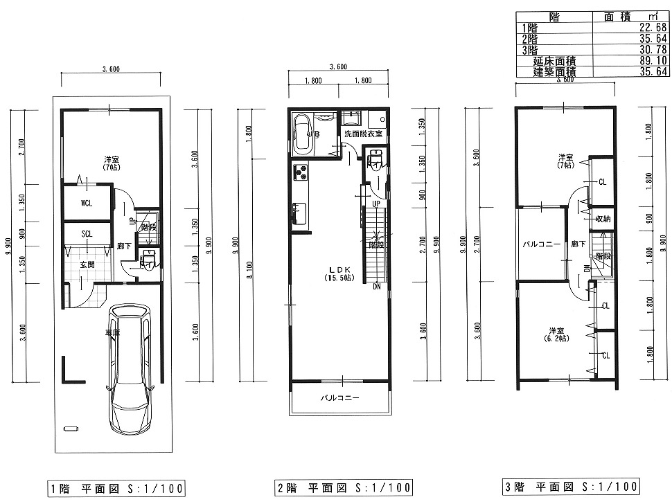
大阪メトロ谷町線「都島駅」 徒歩 26分 | 大阪市都島区大東町2丁目20 | 土地/54.28㎡ 建物/95.85㎡ | 2019年03月 | 4 LDK |
物件写真・間取り
物件概要
| 物件名 | 都島区大東町2丁目【新築戸建】 御成約済 |
|---|
| 交通機関 | 大阪メトロ谷町線「都島駅」 徒歩 26分 |
|---|
| 所在地 | 大阪市都島区大東町2丁目20 |
|---|
| 間取り | 4 LDK |
|---|
| 土地権利 | 所有権 |
|---|
| 建築確認番号 | 01805431 |
|---|
| 土地面積 | 54.28㎡ |
|---|
| 私道負担面積 | 無し |
|---|
| 建物面積 | 95.85㎡ |
|---|
| 建物構造 | 木造 |
|---|
| 築年月 | 2019年03月 |
|---|
| 都市計画 | 市街化区域 |
|---|
| 用途地域 | 第一種住居地域 |
|---|
| 建ぺい率 | 80% |
|---|
| 容積率 | 200% |
|---|
| 駐車場 | 有 |
|---|
| 接道 |
|
|---|
| 地目 | 宅地 |
|---|
| 現況 | 未着工 |
|---|
| 引渡し | 相談 |
|---|
| 取引態様 | 媒介 |
|---|
| 情報登録日 | 2018年11月02日 |
|---|
























