都島区都島中通2丁目御成約済
【 新築一戸建て 】
| 最寄駅 | 所在地 | 面積 | 築年月 | 間取り |
|---|---|---|---|---|
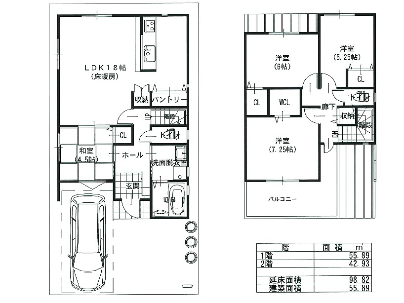
地下鉄長堀鶴見緑地線「京橋駅」 徒歩 9分 | 大阪市都島区都島中通2丁目7 | 土地/105.04㎡ 建物/100㎡ | 2020年04月 | 4 LDK |
物件写真・間取り
物件概要
| 物件名 | 都島区都島中通2丁目御成約済 |
|---|
| 交通機関 | 地下鉄長堀鶴見緑地線「京橋駅」 徒歩 9分 JR環状線「京橋駅」 徒歩 11分 |
|---|
| 所在地 | 大阪市都島区都島中通2丁目7 |
|---|
| 間取り | 4 LDK |
|---|
| 土地権利 | 所有権 |
|---|
| 土地面積 | 105.04㎡ |
|---|
| 私道負担面積 | 2.02㎡ |
|---|
| 建物面積 | 100㎡ |
|---|
| 建物構造 | 木造 |
|---|
| 築年月 | 2020年04月 |
|---|
| 都市計画 | 市街化区域 |
|---|
| 用途地域 | 第一種住居地域 |
|---|
| 建ぺい率 | 80% |
|---|
| 容積率 | 300% |
|---|
| 駐車場 | 有 |
|---|
| 接道 |
|
|---|
| 地目 | 宅地 |
|---|
| 現況 | 更地 |
|---|
| 販売戸数 | 1 |
|---|
| 引渡し | 相談 |
|---|
| 備考 | 土地だけお探しの方もご相談ください。 |
|---|
| 取引態様 | 代理 |
|---|
| 情報登録日 | 2019年11月12日 |
|---|
| 情報更新日 | 情報登録日より2週間 |
|---|
















