旭区高殿4丁目【建築条件付き土地】御成約済
【 土地 】地下鉄「関目高殿駅」徒歩5分の南向き公道6mで土地28坪付!
| 最寄駅 | 所在地 | 面積 | 築年月 |
|---|---|---|---|
大阪メトロ谷町線「関目高殿駅」 徒歩 5分 | 大阪市旭区高殿4丁目 | 土地/93.56㎡ |
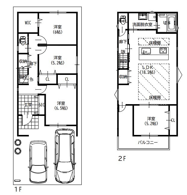
物件写真・間取り
物件概要
| 物件名 | 旭区高殿4丁目【建築条件付き土地】御成約済 |
|---|
| 交通機関 | 大阪メトロ谷町線「関目高殿駅」 徒歩 5分 大阪メトロ今里筋線「関目成育駅」 徒歩 8分 京阪本線「関目駅」 徒歩 9分 |
|---|
| 所在地 | 大阪市旭区高殿4丁目 |
|---|
| 土地権利 | 所有権 |
|---|
| 土地面積 | 93.56㎡ |
|---|
| 私道負担面積 | 無し |
|---|
| 築年月 |
|---|
| 都市計画 | 市街化区域 |
|---|
| 用途地域 | 第一種住居地域 |
|---|
| 建ぺい率 | 80% |
|---|
| 容積率 | 200% |
|---|
| 接道 |
|
|---|
| 地目 | 宅地 |
|---|
| 現況 | 更地 |
|---|
| 販売戸数 | 限定1区画 |
|---|
| 備考 | 建物標準価格100㎡/1900万円(税込) 土地だけお探しの方も相談をさせていただきます。 |
|---|
| 取引態様 | 一般 |
|---|
| 情報登録日 | 2023年08月02日 |
|---|
| 情報更新日 | 2025年03月24日 |
|---|












