「京橋駅」徒歩10分 売土地 御成約済
【 土地 】お好きなメーカーさんで建築してください。
| 最寄駅 | 所在地 | 面積 | 築年月 |
|---|---|---|---|
大阪メトロ長堀鶴見緑地線「京橋駅」 徒歩 10分 | 大阪市都島区都島中通2丁目 | 土地/103.02㎡ |
物件写真・間取り
物件概要
| 物件名 | 「京橋駅」徒歩10分 売土地 御成約済 |
|---|
| 交通機関 | 大阪メトロ長堀鶴見緑地線「京橋駅」 徒歩 10分 大阪メトロ谷町線「都島駅」 徒歩 12分 |
|---|
| 所在地 | 大阪市都島区都島中通2丁目 |
|---|
| 土地権利 | 所有権 |
|---|
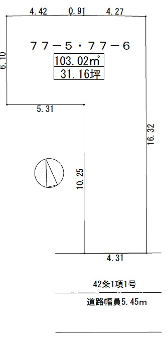
| 土地面積 | 103.02㎡ |
|---|
| 私道負担面積 | 無し |
|---|
| 築年月 |
|---|
| 都市計画 | 市街化区域 |
|---|
| 用途地域 | 第一種住居地域 |
|---|
| 建ぺい率 | 80% |
|---|
| 容積率 | 300% |
|---|
| 接道 |
|
|---|
| 地目 | 宅地 |
|---|
| 現況 | 更地 |
|---|
| 設備 | 上水道、下水道、ガス |
|---|
| 取引態様 | 代理 |
|---|
| 情報登録日 | 2020年12月17日 |
|---|
| 情報更新日 | 2021年05月17日 |
|---|












