東住吉区湯里4丁目【新築戸建】御商談中
【 新築一戸建て 】超制震住宅の家 地震保証30年間
| 最寄駅 | 所在地 | 面積 | 築年月 | 間取り |
|---|---|---|---|---|
近鉄南大阪線 「針中野駅」 徒歩 10分 | 大阪市東住吉区湯里4丁目 | 土地/80㎡~234㎡ 建物/90㎡~㎡ | 2021年00月 | 4 LDK |
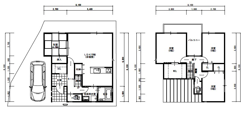
物件写真・間取り
物件概要
| 物件名 | 東住吉区湯里4丁目【新築戸建】御商談中 |
|---|
| 交通機関 | 近鉄南大阪線 「針中野駅」 徒歩 10分 |
|---|
| 所在地 | 大阪市東住吉区湯里4丁目 |
|---|
| 間取り | 4 LDK |
|---|
| 土地権利 | 所有権 |
|---|
| 土地面積 | 80㎡~234㎡ |
|---|
| 建物面積 | 90㎡~㎡ |
|---|
| 建物構造 | 木造 |
|---|
| 築年月 | 2021年00月 |
|---|
| 都市計画 | 市街化区域 |
|---|
| 用途地域 | 第二種中高層住居専用地域 |
|---|
| 建ぺい率 | 60% |
|---|
| 容積率 | 200% |
|---|
| 駐車場 | 有 |
|---|
| 地目 | 宅地 |
|---|
| 現況 | 更地 |
|---|
| 販売戸数 | 2戸(予定) |
|---|
| 引渡し | 相談 |
|---|
| 取引態様 | 一般 |
|---|
| 情報登録日 | 2020年08月25日 |
|---|
| 情報更新日 | 情報登録日より2週間 |
|---|

















