- HOME
- MESSAGE新今里
MESSAGE新今里
【 一棟 マンション 】令和2年2月 新築
| 最寄駅 | 所在地 | 面積 | 築年月 | 価格 | 間取り |
|---|---|---|---|---|---|
近鉄大阪線「今里駅」 徒歩 6分 | 大阪市生野区新今里5丁目6-3 | 土地/188.04㎡ 建物/850.80㎡ | 2022年09月 | 34,000 万円 | 1 K |
| 満室時利回り | 5.96% | 満室時年収 | 2,028万円 |
|---|
物件写真・間取り
物件概要
| 物件名 | MESSAGE新今里 |
|---|
| 交通機関 | 近鉄大阪線「今里駅」 徒歩 6分 |
|---|
| 所在地 | 大阪市生野区新今里5丁目6-3 |
|---|
| 価格 | 34,000万円 |
|---|
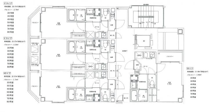
| 間取り | 1 K |
|---|
| 土地権利 | 所有権 |
|---|
| 土地面積 | 188.04㎡ |
|---|
| 私道負担面積 | 無し |
|---|
| 建物面積 | 850.80㎡ |
|---|
| 建物構造 | 鉄骨造 |
|---|
| 築年月 | 2022年09月 |
|---|
| 用途地域 | 商業地域 |
|---|
| 建ぺい率 | 80% |
|---|
| 容積率 | 400% |
|---|
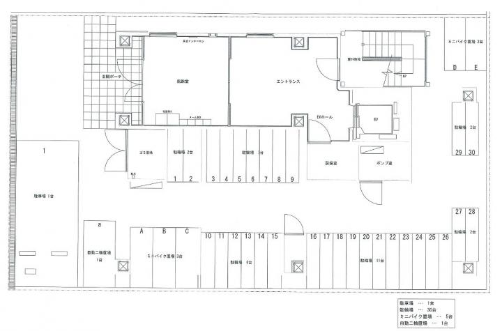
| 駐車場 | 有 |
|---|
| 接道 |
|
|---|
| 地目 | 宅地 |
|---|
| 現況 | 賃貸中 |
|---|
| 引渡し | 相談 |
|---|
| 情報登録日 | 2022年09月10日 |
|---|
| 情報更新日 | 2022年09月10日 |
|---|





























